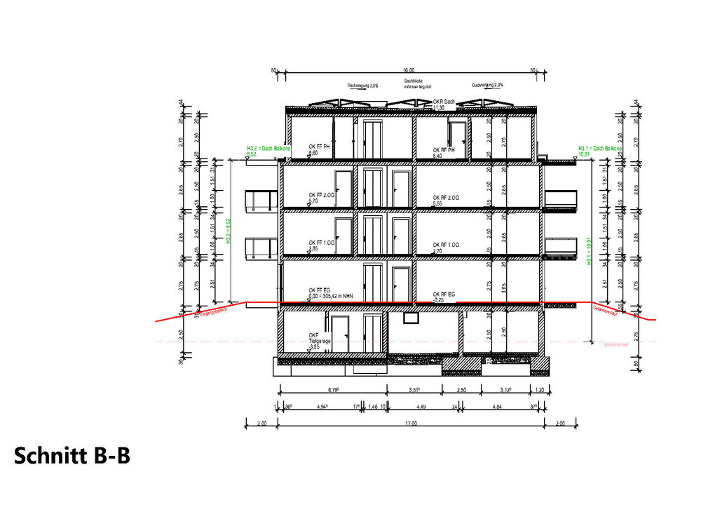
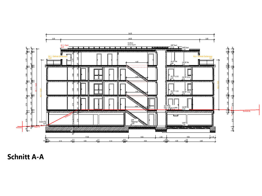
Mehrfamilienhaus Bodestraße 4 in Bad Harzburg
Neubau eines Wohngebäudes
Construction of a residential building
Neubau eines Mehrfamilienhauses mit Tiefgarage.
Neubau eines Wohngebäudes
Construction of a residential building
Neubau eines Mehrfamilienhauses mit Tiefgarage.