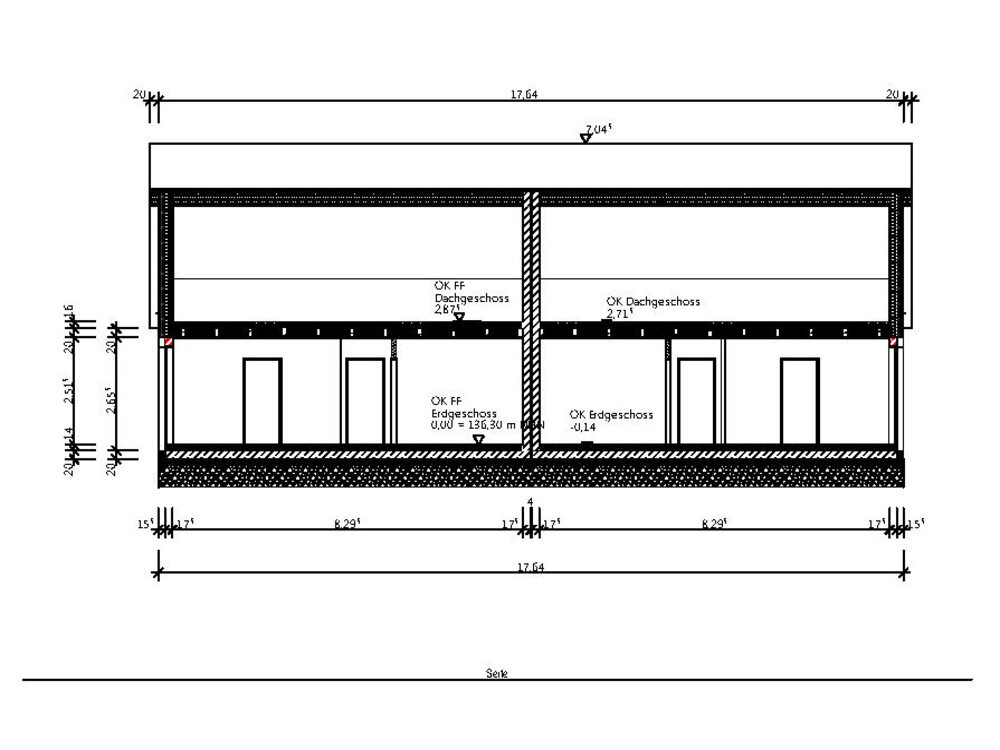
Doppelhaus Bernhard-Pfeiffer-Straße in Schöningen
Neubau eines Wohngebäudes
Construction of a residential building
Neubau eines Doppelhauses mit Ausbaureserve.
Neubau eines Wohngebäudes
Construction of a residential building
Neubau eines Doppelhauses mit Ausbaureserve.